怎么樣選擇家裝設計師?這是家裝的首選,因為你在接觸家裝公司的時候,是從接觸設計師開始的。所以,九鼎裝飾的小編要把選擇家裝設計師的內容放在選擇裝修公司的內容之前來和大家分享。建議業主首先要把自己的構思與想法向家裝設計師充分表達出來,溝通不暢將會導致以后裝修出來會給你一個很大的驚喜,下面簡單的介紹家裝設計師的素質標準的基本要求。

家裝設計師
1.合格的家裝設計師應具備的技能
1) 良好的美術語言表達能力。包括用素描、色彩、速寫、手繪效果圖等繪制能力及模型制作能力。
2) 良好的電腦作能力。 能熟練作AutoCAD、3Dmax、Photoshop、Lightscape和Autodesk VIZ等軟件。
3) 良好的室內設計基礎。包括平面構成、立體構成、色彩構成設計基礎。
4) 良好的室內設計理論。包括中外建筑史、各種時期的設計風格、人體工程學、色彩心理學、空間規劃等。
5) 良好的相關學科基礎。包括物理、化學、電工、音響基礎,以及應用力學、心理學哲學(包括邏輯學)、預算學、公共關系學等邊緣學科的基礎知識。
6) 良好的工程施工基礎。包括木工、泥水工、給排水、電工、油漆和金工的基礎知識,也包括簡單的工程預算基礎。

家裝設計師
2. 如何知道家裝設計師是否合格
1) 聽,專業的室內設計師,言之有據,對問題的看法,絕對不信口開河,這是一種成熟的做法。而且,專業的設計師極少會使用天花亂墜的形容詞。
2) 看,專業的室內設計師,必定擁有一手基本功。這種基本功不是借助于電腦的,而是實實在在的手繪功夫。設計師手繪的示意圖紙應是實在的、言之有物、表現正確和符合透視原理的。
3) 驗,專業的室內設計師,自然會擁有—些學歷證書等證件,其中最主要的是環境藝術設計專業或者建筑設計專業的。當然,杭州家裝網并不排斥自學成才人士,畢竟這個行業有時候還需要悟性和熱情。

家裝設計師
3. 如何用好自己選擇的家裝設計師
(1) 把您的想法告訴設計師,告訴他(她)您需要什么、您喜歡什么,讓您的設計師了解您的文化和職業背景、生活習慣和家庭成員構成。
(2) 不要過分地給設計師設置構思的限制。當您把上面所述的內容告訴設計師后,您需要的是耐心,讓設計師利用他的專業知識把您的不成熟想法轉為規范的東西。這樣做您無需擔憂,因為對任何設計師,您都擁有修改和決定的權力。
(3) 聆聽設計師的方案介紹,充分理解設計師的設計思想。如果您不能理解,您能向他提出,并說出自己的疑問。要敢于承認自己并非專業人士,每個人都有自己的知識范圍。多與設計師溝通,是您得到滿意作品的關鍵。
(4) 當您有想法時,如果設計師持反對意見,您應再三考慮其意見,這不等于您聽命于設計師,而是對您自己物業的慎重態度。

家裝設計師
4. 家裝設計師應怎樣為您服務
(1) 認真聽取業主的基礎情況介紹,了解他們的需要,包括生活習慣、個人愛好等。
(2) 設計要依據業主的經濟承受能力,脫離工程造價控制線做出來的設計,只能是一個好而無用的東西。
(3) 設計風格要控制在業主可接受的范圍之內。一個好的設計風格,是綜合各種因素慮的,除了上面所說的情況外,涉及的內容還包括業主的年齡和審美能力等因素。
小編總結:以上就是九鼎裝飾對怎么樣選擇家裝設計師的相關介紹,希望能夠幫助到有這方面需求的業主!九鼎裝飾裝修公司20年專注家裝,施工工藝的口碑得到良好的傳承,九鼎裝飾服務于10000+家庭業主,各式裝修設計風格以及效果圖,設計師都是10年以上經驗的老設計師,對自己設計的風格有自己獨特的見解,致力滿足客戶的需求。也可直接加我們的設計師助理微信:13357116131為您咨詢裝修報價。

全國
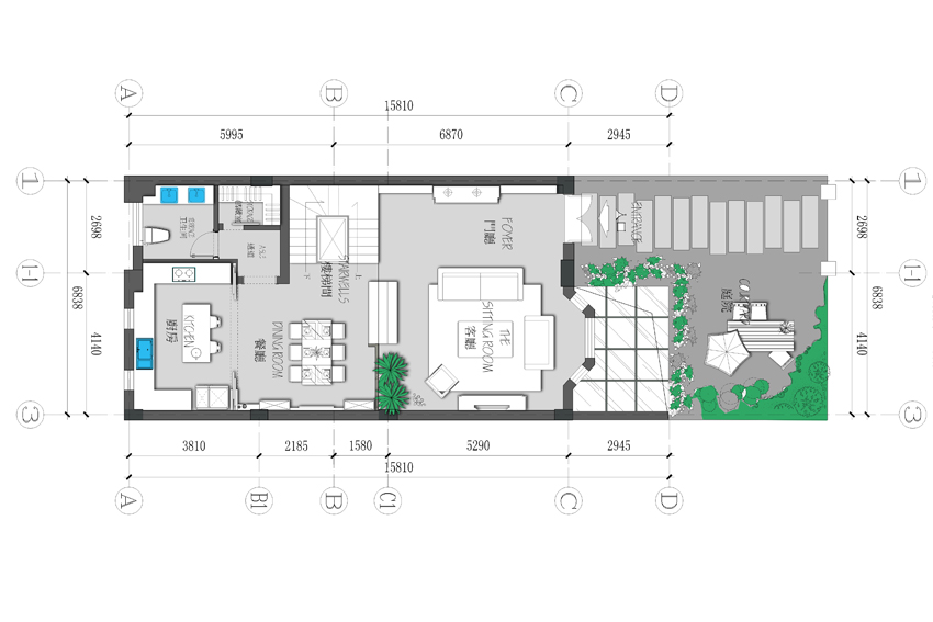
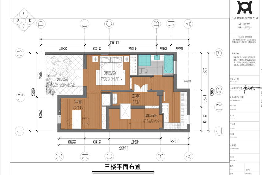
杭州春天華府160㎡輕法式裝修案例
杭州三臺山400㎡中式裝修案例
杭州平層150㎡古典現代裝修案例
杭州之江一號137㎡現代極簡裝修案例
杭州御景藍灣120㎡現代簡約裝修效果圖
杭州唐家景府120㎡現代簡約裝修效果圖
杭州杜湖名庭200㎡法式中古風裝修案例效果圖
杭州靜江會260㎡意式輕奢案例
杭州近江一園80㎡奶油中古裝修案例效果圖
杭州杭州河濱公寓200㎡意式極簡裝修案例效果圖